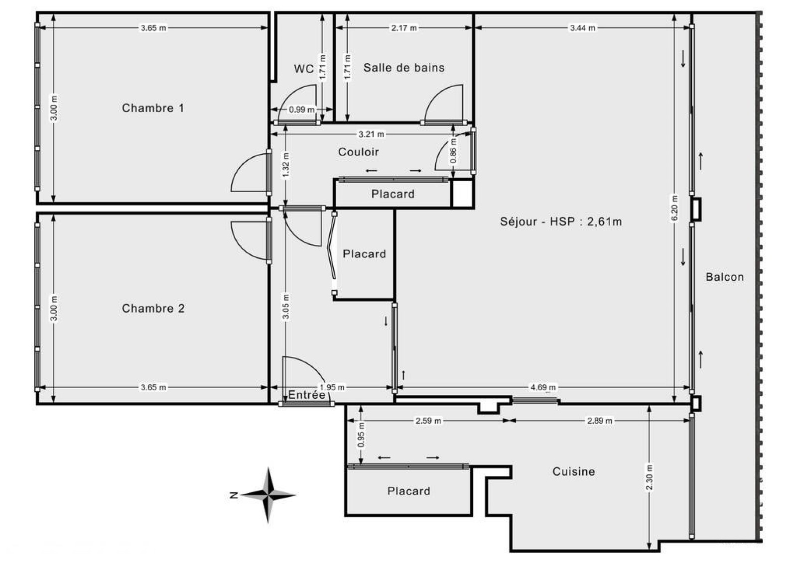
Appartement 3 pièce(s) 2 chambre(s) 72 m²
Vaucresson (92420)A propos de ce bien
Caractéristiques de ce bien
- Surface 72 m²
- séjour 25,17 m²
- 2 chambre(s)
- 1 salle(s) de bain
- construit en 1967
- TRAD_DETAIL_INFOS_GLOBAL_DEFAULT_CUISINE_FORMATED_AMENAGEE_EQUIPEE
- Chauffage collectif : au sol (gaz)
- 1 parking(s)
- exposition Sud
- 2ème étage
- 4 étage(s)
- ascenseur
- cave
- balcon
- interphone
Diagnostics énergétiques
Montant estimé des dépenses annuelles d'énergie de ce logement pour un usage standard est compris entre 670 € et 950 € . 2021 étant l'année de référence des prix de l'énergie utilisés pour établir cette estimation.
Diagnostics énergétiques
Montant estimé des dépenses annuelles d'énergie de ce logement pour un usage standard est compris entre 670 € et 950 € . 2021 étant l'année de référence des prix de l'énergie utilisés pour établir cette estimation.
Informations financières
Autour du bien
-
Commerces et santé
-
Loisirs
-
Ecoles
-
Transports
-
Pratique
